首頁    與我們連絡    都市更新權利變換計畫案(送件版)

擬訂臺北市中正區南海段二小段49-5地號等34筆土地

都市更新事業計畫案

 

一、基地基本資料

二、處理方式及其區段劃分

三、容積獎勵申請

四、建築規劃設計

五、實施方式及有關費用負擔

六、拆遷安置計畫

七、財務計畫

八、實施進度

九、聯絡方式

企畫案首頁

 

 

四、建築規劃設計

(一)建築物設計

1. 型態、構造及樓層數:本計畫都市更新單元擬興建地上15層地下4層之建築物,其建築構造設計採RC構造。

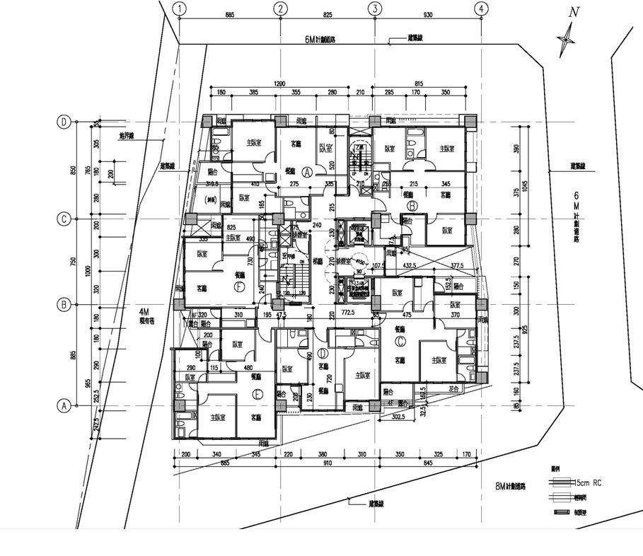
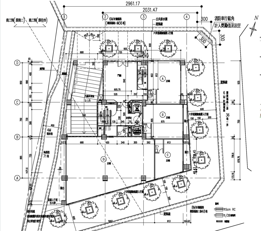
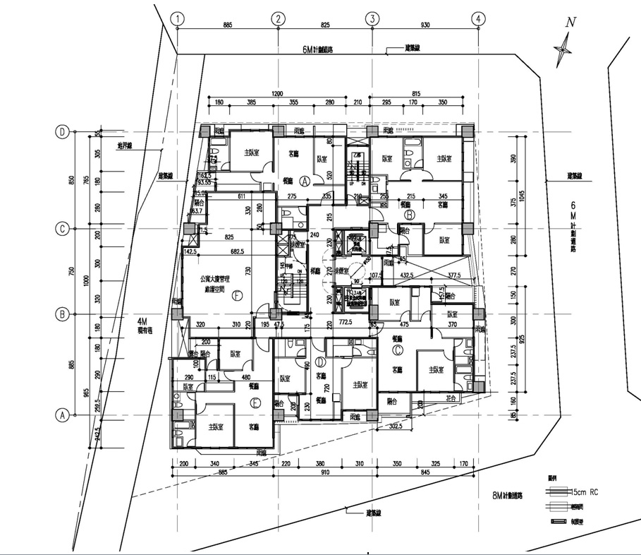
2. 規劃戶數及空間用途:規劃店舖4戶及住宅71戶,更新後總共戶數為75戶。一層規劃為社區入口門廳及店舖單元,二層以上均規劃住宅單元使用。

一層平面圖

 

二層平面圖

三層平面圖

四至十層平面圖

十一至十五層平面圖

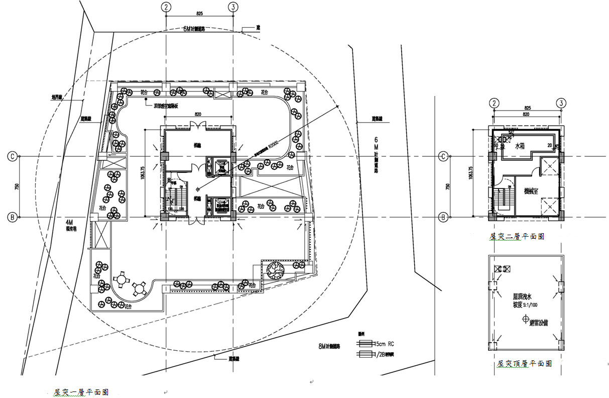
屋突層平面圖

地下一層平面圖

地下二層平面圖

地下三層平面圖

地下四層平面圖

左向(西向)背向(北向)立面

正向(南向)右向(東向)立面

 

透視模擬圖

實景透視模擬圖

(二)人車動線設計

停車空間進出動線應配合基地周邊之道路系統特性進行規劃,本基地汽機車之停車空間出入口位於基地北側道路。

停車場出入口配置示意圖

(二)景觀植栽設計

                          1. 北、東、南側商店區規劃—休憩林蔭步道區:北側商店區沿街規劃寬度六公尺(含喬木種植區)之林蔭步道及休憩座椅供鄰里與社區居民使用。
2. 西側—社區後花園塑造區:於門廳與南側8米計畫道路中間圍朔出一綠美化的緩衝空間,利用此緩衝空間讓門廳的視線更具穿透性,也藉由綠美化拉近社區居民與鄰里的關係。

全區景觀配置圖

 

(三)消防救災及逃生避難設計

1. 基地留設8Mx20M雲梯車救災操作範圍。

2. 提供暢通無阻的防災避難動線。

3. 合理規劃人行及車行避難動線,並提供消防人員安全救災動線,已達安全救災活動空間。

防災與逃生避難規劃平面圖